Property Type
House, House
Parking
Garage: Yes, 5 parking
MLS #
40779484
Size
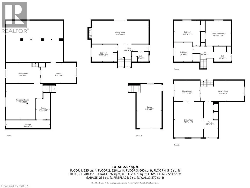
1702 sqft
Basement
Finished, Full (Finished)
Listed on
-
Lot size
-
Tax
-
Days on Market
-
Year Built
1974
Maintenance Fee
-
