48
$2,999,000 Sale
Listed 3 hours ago
149 ALEXIS BOULEVARD
· 4+1
· 5.5
· 4
· 3500 - 5000
Key Facts
Key facts for 149 ALEXIS BOULEVARD
Property Type
House, House
Parking
Garage: Yes, 4 parking
MLS #
C12489364
Size
3500 - 5000 sqft
Basement
Finished, N/A (Finished), N/A
Listed on
-
Lot size
-
Tax
-
Days on Market
-
Year Built
-
Maintenance Fee
-
Description
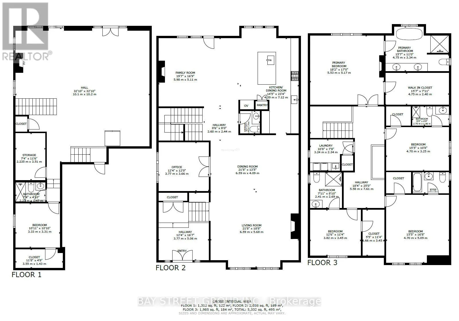
Welcome to 149 Alexis Blvd! This exceptional newly custom-built mansion (2019) presents unparalleled elegance and luxury. Home sits on a prestigious 44 x 161 ft premium lot. Nestled in a highly sought-after cul de sac in Clanton Park neighborhoods. Boasting over 5,332 SQF luxurious living spaces(4,0...20SF in Main & 2nd) with soaring ceilings: over 14 ft in the grand entrance foyer, 9.5ft on the main floor, extremely rare 12 ft in the finished W-A-L-K-O-U-T basement. Stone front and 9-feet grand double door offers impressive curb appeal. The gourmet kitchen boasts premium countertops, backsplash, custom cabinetry & Wolf appliances. A bright and spacious home office on the main floor. Each of the four bedrooms has its own ensuite bath. Spa-inspired bathrooms showcase lavish details and premium fixtures. Natural light floods the interiors all day along through expansive windows and THREE stunning SKYLIGHTS. House also equipped with FOUR high end GAS FIREPLACES that offer your family endless warmth and cozyness. The finished walkout basement features 12-feet soaring ceiling, HEATED FLOOR, additional bedroom, bathroom, and a versatile recreation area. Additional features include built-in central audio system and surveillance system. Sprinkler system installed throughout front & back yard. Prime location: steps from public transit and plazas, walking distance to schools, Earl Bales Park, trails, and the community centre. Conveniently close to Hwy 401, Yorkdale Shopping Centre, Don Valley Golf Course, top private schools, and within the boundary of the highly ranked William Lyon Mackenzie CI (renowned MaCS program). This property delivers luxury, functionality, and a Prime location all in one. A Must See! (id:10452)
Similar Properties (No results)
Room Types
Bedroom
-
Dimensions 3.33 m x 3.31 m
118.64 sqft
Bedroom 2
-
Dimensions 4.7 m x 3.25 m
164.42 sqft
Bedroom 3
-
Dimensions 5.09 m x 4.7 m
257.51 sqft
Listing courtesy of: BAY STREET GROUP INC.
This REALTOR.ca listing content is owned and licensed by REALTOR® members of The Canadian Real Estate Association.