34
$11 Rent
Listed 3 hours ago
204A - 716 GORDON BAKER ROAD
· 0
· 0.0
· 0
· 2064
Key Facts
Key facts for 204A - 716 GORDON BAKER ROAD
Property Type
Commercial, Offices
Parking
Garage: No, 0 parking
MLS #
C12489382
Size
2064 sqft
Basement
-
Listed on
-
Lot size
-
Tax
-
Days on Market
-
Year Built
-
Maintenance Fee
-
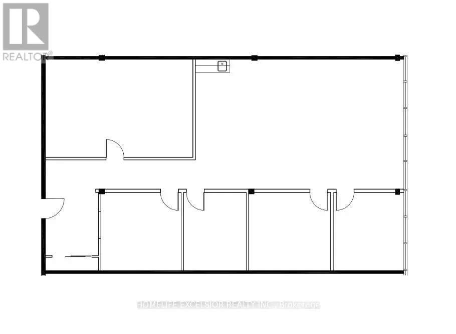
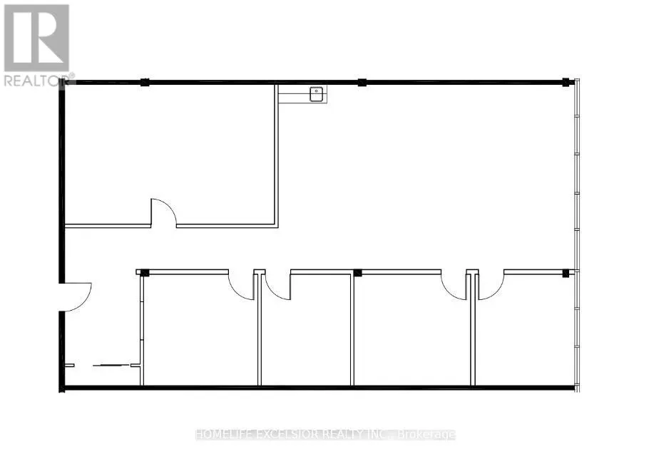
Description
Prime Location! Situated near the junction of Hwy 404 and Steeles Avenue, with easy access to Woodbine Avenue, DVP, Hwy 401, and Hwy 407, this office unit boasts unparalleled convenience. Featuring three spacious office rooms, a well-appointed boardroom, a generously-sized open office area, a conven...ient kitchenette, and a welcoming reception area, this space is ideal for any business looking to thrive in a strategic and accessible location. (id:10452)
Similar Properties (No results)
Listing courtesy of: HOMELIFE EXCELSIOR REALTY INC.
This REALTOR.ca listing content is owned and licensed by REALTOR® members of The Canadian Real Estate Association.